Wasserkraftwerk Bienertmühlwehr Dresden

Plauenscher Grund

Das Wehr vor 100 Jahren

Schnitt

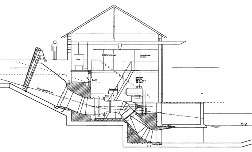
Das Turbinenhaus im Schnitt

Straßenansicht

Das Wehr vor Baubeginn

Foto von Aussichtsplattform

Das Wehr im Bau

Foto von Einfahrt

Richtfest am 24. Januar 2000

Foto von Straße

Das fast fertige Wehr

Foto von Aussichtsplattform

Das Wehr vom Hohen Stein

Turbinenhaus von unterer Ebene

Auffahrt aus Naturstein-Pflaster

Schriftzug am Turbinenhaus

"Grüner" Strom aus der Weißeritz

"LÖBTAUER ANZEIGER" Juni 2000

Wenn man von der Aussichts­plattform unterhalb des Hohen Steins auf das Wehr der Weißeritz an der Hegereiter-Brücke blickt, oder im Plauenschen Grund in Richtung Freital kurz vor dem Straßen­tunnel­mundloch links auf einen kleinen Parkplatz fährt, fällt am Wehrfuß ein schmuckes, neu errichtetes Häuschen ins Auge: das Betriebs­gebäude eines kleinen, seit April 2000 in Betrieb befindlichen Wasserkraftwerkes. Die Bauherren der Wolter-Wasserkraft-Gesellschaft – der Architekt Lothar Gloger und sein Freund, der Elektrotechniker Eckhard Wolter – mussten mehrjährige Vorarbeiten für Planungen und Berechnungen sowie für das Einholen von Gutachten, Genehmigungen und Kredite leisten, bevor im April 1999 mit der Bau­ausführtung begonnen werden konnte.

Das Vorhaben nutzt im Bereich des bisher stark vernachlässigten Bienertmühl-Wehres ein Flussgefälle von etwa 5 Metern. Eine horizontal eingebaute Kaplan-Rohrturbine, im Oktober '99 vom tschechischen Hersteller KD Turbo Technics mit einem 180-Tonnen-Kran in das vorbereitete Fundament eingehoben und anschließend verschweißt, einjustiert und einbetoniert, kann bei entsprechender Wasserführung der Weißeritz eine Nenn­leistung von 200 kW erreichen. Die gelieferte Energie reicht für die Stromversorgung von etwa 200 Haushalten. Die DREWAG zahlt für die Kilowattstunde "Grünen" Stroms 15 Pfennige. Bei einer Investitions­summe von rund 900.000 DM ist der Einsatz der Bauherren für das umweltfreundliche Vorhaben trotz des Erhalts von etwa 200.000 DM Fördermitteln hoch einzuschätzen, zumal sie eine aufwendige Fischtreppe ("Aufstiegshilfe") für in der Weißeritz lebende Fische mit errichtet und auch zusätzliche Kosten für die Sicherung des Wehres übernommen haben. Wenn auch derzeit noch Restarbeiten am Objekt durch die bauausführende Firma aus Olbernhau zu leisten sind, so hat das Wasserkraftwerk mit einer bisher erzeugten Energiemenge von rund 50.000 kWh seine Existenz­berechtigung innerhalb des Spektrums erneuerbarer Energien bereits erwiesen. Fachlich interessierte sind übrigens nach telefonischer Voranmeldung (0351-4215728) jederzeit willkommen.

Weitere Fotos und Informationen

Hauptseite